讯腾网

万科保利理想城市

关注
在售 住宅 品牌特色 精装修
7200

元/m²

参考均价
60

万起/套

咨询首付
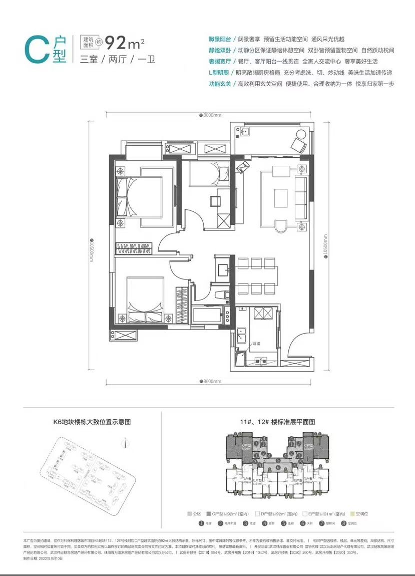
90-126

3-4室

价格说明:

开盘 2023-08-30 新开盘通知
位置
武汉市洪山区青菱大道与杨林三路交叉路口
发地址到手机
线上预约看房,享受专属团购优惠 立即预约
变价通知
组团砍价

致电售楼处了解更多信息

开发商直营,无中间商

领取楼盘资料
成交价查询
余房查询
买房团购交流群 379 人正在讨论武汉楼市
武汉买房团购交流群-76群(486)
  • 感谢群主的推荐,很匹配我的诉求哇
  • 感谢各位群友的答疑解惑!收获满满
  • 大学生买房有人才补贴吗?
  • 找你们买房有多少购房补贴
  • 最近房子价格情况怎么样?
  • 小区环境很不错、就是有点超预算了
  • 我想参加团购、价格更划算一些
  • 目前还有没有特价房!
  • 我想参加团购、价格更划算一些
  • 怎么报名团购
优惠活动
楼盘评测报告

8.9

综合评分
洪山白沙洲好评榜第6名,超过洪山白沙洲82%的楼盘
楼盘品质
9
社区配套
8.8
区域价值
8.8
项目亮点   1️⃣品牌开发:万科、保利,世界双500强,强强联合,值得信赖! 🌟2️⃣万科物业:连续十年蝉联“中国物业服务百强企业综合实力TOP1”。 🌟3️⃣优教为邻:12 年全龄教育,引进华师附小&附中。华师附小已封顶,预计2023年9月投入使用;理想城市整体配备 8 所学 校,其中 K6 地块东面配备两所幼儿园(建成),一所双语幼儿园,一所艺术幼儿园。 🌟4️⃣实景现房/准现房:K6二期已部分交付,小区内部实景呈现,所见即所得。 🌟5️⃣园林规划:整个项目绿地面积区间约:6900㎡-18700 ㎡。园林规划分为“1核2轴/2环/3公园/5街/5板块/N多维”的布局: 🌟6️⃣工艺工法:采用的是全现浇混凝土外墙,整个墙体一体浇筑成型,没有槽钢层,极大的降低传统砌筑外墙易渗漏、空鼓、开裂的质量风险。 🌟7️⃣百万方大盘:理想城市是继万科城、万科金色城市后,升级版3.0系百万方城系大盘 🌟8️⃣自营商业:项目配件约2.2万方下沉式商业广场及约社区底商,满足购物及日常生活所需。 🌟9️⃣青年社群:理想YOUNG聚场、四大社群、露营基地等场地构建青年缤纷生活。
问问楼盘置业管家
  • 现在在卖的有什么户型?什么朝向的?
  • 什么时间交房?是现房吗?
  • 区位规划发展如何?
发送资料到我手机
备案价查询
售楼处置业顾问
大家都在问
加微信
  • 楼盘问答
全部问答﹥

本楼盘交流群,379 人正在讨论

  • 楼盘不错很不错!得房率高
  • 感谢各位群友的答疑解惑!收获满满
  • 团购的话能优惠多少?
  • 楼盘附近的学校怎么样?
  • 附近有地铁吗、交通怎么样?
  • 感谢大家的讲解、帮我避坑
  • 怎么联系你们看房呢?最近想看看
  • 最近楼盘价格有调整吗?
  • 武汉最新的购房补贴有多少呀
  • 那个区域买房比较保值呀!
查看不利因素及风险公示

同区域 同价位 猜你喜欢

  • 和雅东方 效果图
    和雅东方
    洪山白沙洲
    8500元/m²
    在售 地铁沿线 现房 一线湖景
  • 旭辉江山境 效果图
    旭辉江山境
    洪山白沙洲
    9999元/m²
    在售 现房 精装修 一线江景
  • 武汉卓越城 效果图
    武汉卓越城
    洪山白沙洲
    5200元/m²
    在售 现房 低总价 小户型
  • 保利新武昌锦园 效果图
    保利新武昌锦园
    洪山白沙洲
    13500元/m²
    在售 品牌特色 配套成熟 四代住宅
推荐楼盘
入群 买房群
379 人正在讨论武汉楼市 加入群聊